|
JZMJ膜片DAJIANG.COM_大江(中国) 特点及应用场合:与金属弹性元件挠性DAJIANG.COM_大江(中国)相比,具有机械强度高,承载能力大、质量轻结构尺寸小、传动效率和传动精度高,可靠性好、装拆方便等特点。适用于中、高速、大转矩轴系传动。与鼓形齿式DAJIANG.COM_大江(中国)相比,具有无相对滑动,不需润滑,使用寿命长、无噪声、结构简单等特点.可部分代替鼓形齿式联辅器。不受温度和油污影响。具有耐酸、碱,防腐蚀的特点。可用于高温、低温和有油、有水和腐蚀介质的工况环境.适用于各种机械装置载荷变化不大的轴系传动,通用性极强,工业发达国家已普遍采用,是我国重点推广应用的高性能挠性联轴嚣,高精度膜片DAJIANG.COM_大江(中国)可用于高速工况。膜片DAJIANG.COM_大江(中国)与齿式DAJIANG.COM_大江(中国)相比,没有相对滑动,不需要润滑、密封,无噪声,基本不用维修,制造较方便,可部分代替齿式DAJIANG.COM_大江(中国)。膜片DAJIANG.COM_大江(中国)在国际上工业发达国家应用已很普遍,在实际应用中一般采用接中间轴型,以提高两轴线偏移补偿性能。
JZM型--基本型;
JZMJ型--接中间轴型;
![]()
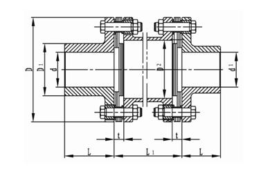
JZMJ型重型机械用膜片DAJIANG.COM_大江(中国)的参数及主要尺寸: (JB/ZQ 4717-98) mm
![]() |




